top of page

DeSoto
The Desoto Park Model beautifully merges rustic farmhouse aesthetics with contemporary conveniences, ensuring a perfect balance of traditional design and exceptional quality. This unique floor plan features an impressive 24 windows, thoughtfully designed to invite the beauty of the outdoors into your living space. With its expansive open areas and unobstructed sightlines, the Desoto fosters a warm and welcoming ambiance, making it an ideal retreat for relaxation and connection. Experience the charm of country living without sacrificing modern comforts in this exquisite model.
394 SF±
Sleeps 4
12x45
Standard Layout
.jpg)
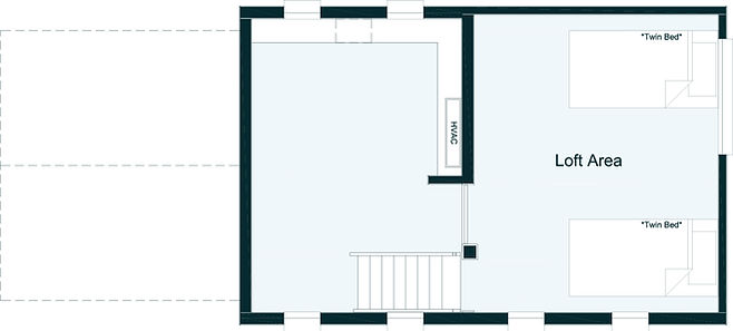
Loft Layout
.jpg)
Features
Tour Inside
bottom of page
































